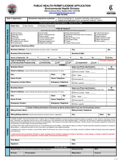
Video: How to Complete a Public Health Permit Application
Video oleh Los Angeles County Public Health
Video oleh Los Angeles County Public Health
Get a Public Health Permit/License adalah layanan digital yang dirancang untuk membantu pengguna mendapatkan informasi lengkap dan terpercaya. Anda dapat menggunakannya dengan mengunjungi situs resmi dan mengikuti panduan yang tersedia.
Ya, Get a Public Health Permit/License dapat diakses secara gratis oleh semua pengguna. Tidak ada biaya tersembunyi atau langganan yang diperlukan untuk menggunakan layanan dasar yang disediakan.
Untuk mendapatkan informasi terbaru tentang Get a Public Health Permit/License, Anda bisa mengunjungi halaman resmi kami secara berkala. Kami selalu memperbarui konten dengan informasi terkini dan terpercaya.